
住宅的套內建筑面積和建筑面積都是不容易測量的,而套內使用面積到是最直觀、最容易測量的。因此,購房者可先測套內使用面積,然后利用套誒建筑面積、建筑面積與使用面積之間存在的關系計算套內建筑面積或建筑面積。
步驟/方法
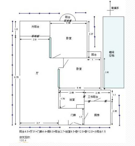
1、獲取詳細的標準層或自家所在樓層平面圖
在測量開始,我們必須要拿到詳細的住宅平面圖,這樣測量與計算才會更加準確,這些圖紙通常都是由房地產開發商來提供的。在平面圖中的主要數據包括:
1) 各房間的軸線尺寸:就是承重墻或柱的中心線之間的尺寸。
2) 外墻的總尺寸:就是計兩道尺寸線。
3) 各房間的使用面積

2、實地測量套內使用面積
一般在開始測量時,為了保證測量的準確性,測量時要注意使測量位置距地面高1—1.2米。使用面積的測算,對房間內部測量所得到的尺寸,是房間軸線尺寸減去墻體厚度和抹面厚度的尺寸 ,不能作為面積中的尺寸。也就是說,根據這個尺寸算出的面積并非是使用面積。使用面積是按軸線尺寸除去結構厚度尺寸的房間內部尺寸計算的。一般來說,承重墻體是磚墻時,結構厚24cm,寒冷地區外 墻結構厚度為37cm,混凝土墻結構厚度20cm或16cm,非承重墻12cm、10cm、8cm不等。一般來說,軸線位 于墻體的中間,中間兩側各為半個墻厚。白灰抹面厚度一般為 2~3cm(具體圖紙中應標注)。
測量位置在距地面1~1.2米高處,對于軸線尺寸360cm的房間,測量結果應是360-20-2.5×2= 335cm。據此可推算出房間內部軸線尺寸360cm,計算尺寸340cm。尺寸誤差如果在幾厘米之內,說明抹灰厚度不準確、不均勻,一般不影響軸線尺寸和房間內部尺寸。
3、測量并計算套內建筑面積
測量好套內使用面積后,要計算套內建筑面積還必須測量陽臺的建筑面積。陽臺建筑面積的測量方法基本上與使用面積的測量方法一樣,但要注意區分不同類型的陽臺。
計算公式如下:套內建筑面積=套內使用面積+套內墻體面積+陽臺建筑面積
4、如商品房買賣合同以套內建筑面積或者建筑面積為計算價格,實際交付與合同約定面積不符,合同有約定按約定處理;合同沒約定或約定不明確,按照以下原則處理:
1)面積誤差比絕對值在3%以內(含3%),按照合同約定的價格據實結算,買受人請求解除合同的,不予支持;
2)面積誤差比絕對值超出3%,買受人請求解除合同、返還已付購房款及利息的,應予支持。買受人同意繼續履行合同,房屋實際面積大于合同約定面積的,面積誤差比在3%以內(含3%)部分的房價款由買受人按照約定的價格補足,面積誤差比超3%部分的房價款由出賣人承擔,所有權歸買受人;房屋實際面積小于合同約定面積的,面積誤差比在3%以內(含3%)部分的房價款及利息由出賣人返還買受人,面積誤差比超過3%部分的房價款由出賣人雙倍返還買受人。