本次為家居公司辦公室裝修設計方案,辦公室設計面積500平方,設計師在辦公室設計中,以簡潔、暢通、現代為辦公室設計關鍵詞,目的就是希望打造一個人性化的辦公空間。
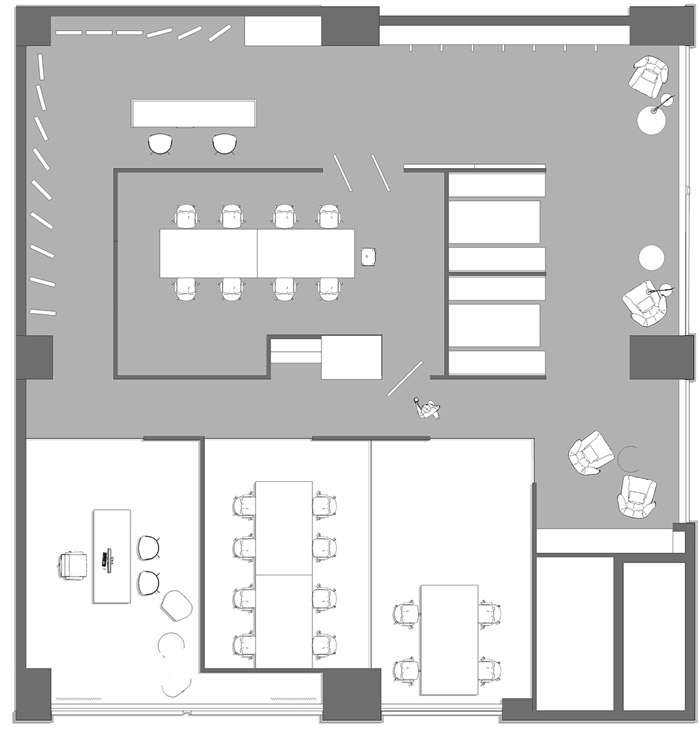
▼家居公司平面圖

▼家居公司進門區

▼家居公司前臺

▼家居公司過道

▼家居公司接待區

▼家居公司交流區

▼家居公司交流區

▼家居公司交流區

▼家居公司辦公區

▼家居公司會議室

▼家居公司會議室

▼總經理辦公室

▼總經理辦公室

本次家居公司辦公室裝修設計方案講解到此結束,設計師在辦公室設計中,以簡潔、暢通、現代為辦公室設計關鍵詞,目的就是希望打造一個人性化的辦公空間。